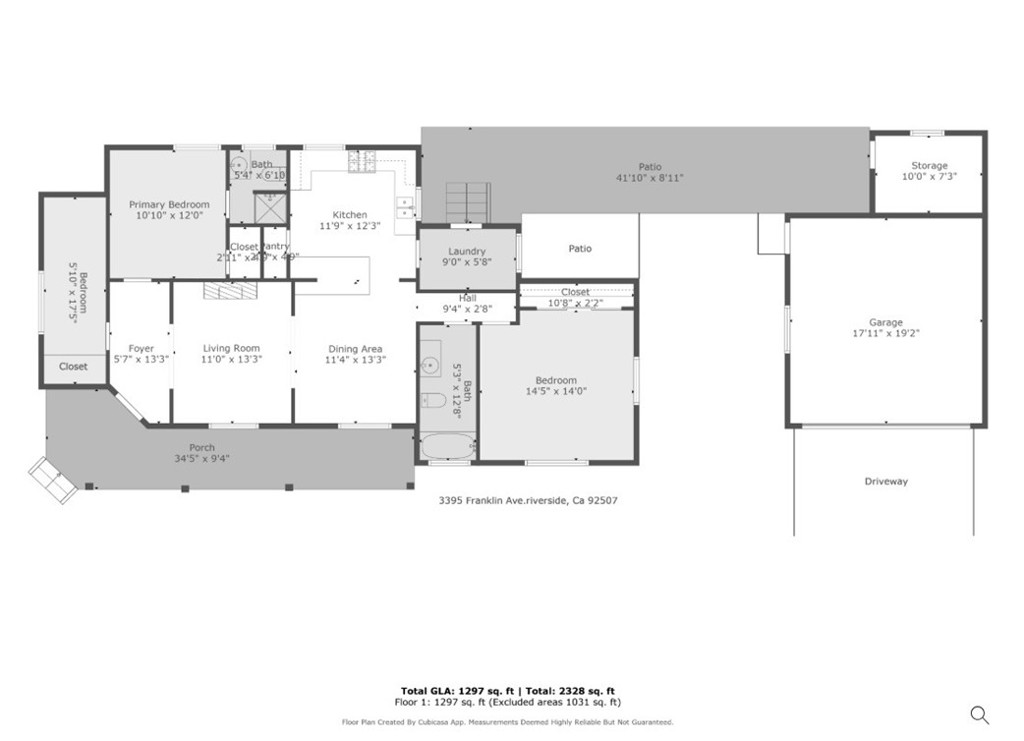
3395 Franklin AvenueRiverside, CA 92507




Welcome to a historic and large corner turnkey home, centrally located minutes from Downtown Riverside, the University of California Riverside (UCR), Riverside Community College (RCC), and the Iconic Mission Inn. This vintage one-story 3 bedroom and 2 bath gated home has a large corner lot with excellent curb appeal. Many renovations bring the best of this house's past and present. It includes new paint interior & exterior, an entirely remodeled kitchen with a walk-in pantry, and recessed lighting. The entire home has been completely renovated with tile, updated windows, and a central A/C. The exterior area presents a new patio backyard, reconstructed porch, a newly installed asphalt driveway, and foundation. The home's roof has been replaced to last for many years to come. The detached garage and storage shed holds great rental earnings potential as an investment opportunity. It can be converted to a secondary residential Accessory Dwelling Unit (ADU) ie. studio. This traditional home's key features with its large lot and easy access to major freeways, the Metrolink, schools, shops, dining, and more creates a perfect space for multigenerational living.
| 2 months ago | Listing first seen on site | |
| 2 months ago | Listing updated with changes from the MLS® |
This information is for your personal, non-commercial use and may not be used for any purpose other than to identify prospective properties you may be interested in purchasing. The display of MLS data is usually deemed reliable but is NOT guaranteed accurate by the MLS. Buyers are responsible for verifying the accuracy of all information and should investigate the data themselves or retain appropriate professionals. Information from sources other than the Listing Agent may have been included in the MLS data. Unless otherwise specified in writing, the Broker/Agent has not and will not verify any information obtained from other sources. The Broker/Agent providing the information contained herein may or may not have been the Listing and/or Selling Agent.


Did you know? You can invite friends and family to your search. They can join your search, rate and discuss listings with you.